| Materiaal | Kunststof |
|---|---|
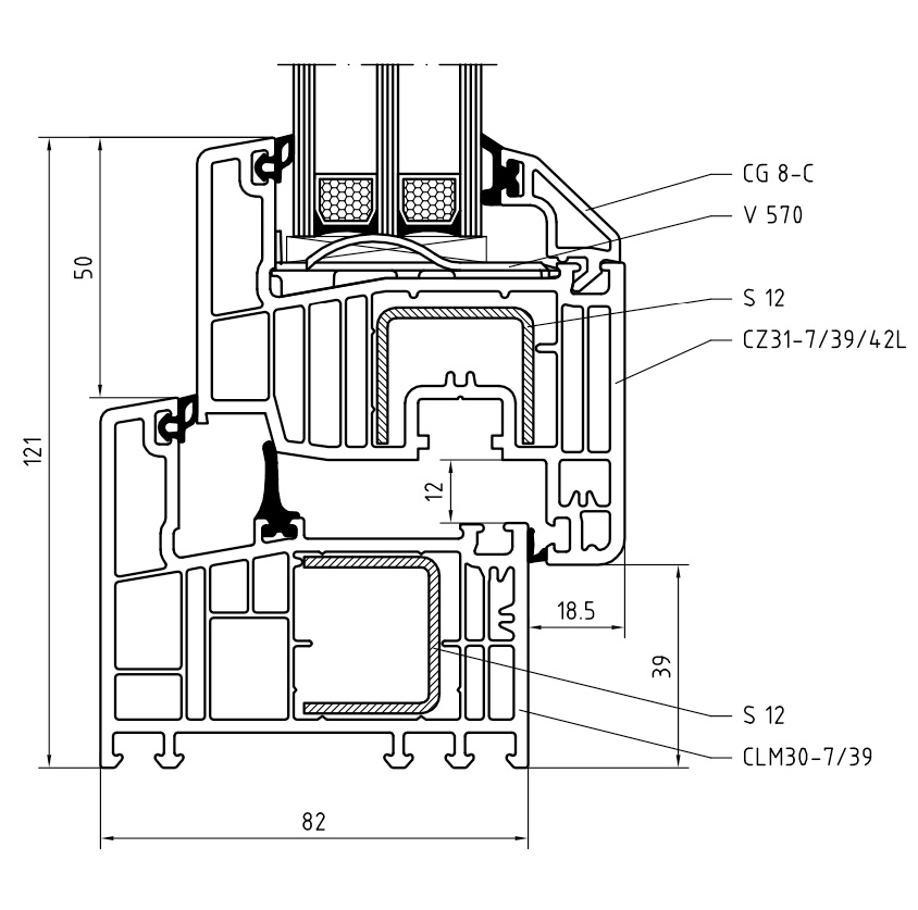
| Systeembouwdiepte | 82 mm |
| Afdichtingssysteem | 3-voudig, met LB-middendichting |
| Glasdikte | 24 – 52 mm |
| Uf-waarde frame | 0.75 W/(m²K) |
| Uw-waarde | 1,0 W/(m²K) |
| Inbraakwering | SKG Klasse 2 / RC2 |
| Constructie | Asymmetrisch 7-kamersysteem |
Het LB Vlak kozijnsysteem is ontworpen voor wie houdt van een minimalistische, egale en moderne uitstraling. Dankzij de vlakke vormgeving, hoogwaardige materiaalkeuze en het geavanceerde middendichtingssysteem biedt LB Vlak niet alleen een strak design, maar ook topprestaties op het gebied van isolatie, duurzaamheid en comfort. Dit maakt het systeem geschikt voor zowel nieuwbouw als renovatieprojecten waarin kwaliteit en een naadloze afwerking centraal staan.
Modern vlak design: Het systeem heeft een volledig vlakke en tijdloze uitstraling die perfect past bij moderne architectuur. De rechte lijnen en subtiele contouren zorgen voor een strakke afwerking die zowel esthetisch als functioneel is.
82 mm inbouwdiepte: Met een royale bouwdiepte van 82 mm levert dit systeem een uitstekende basis voor stabiliteit, isolatie en het verwerken van grotere glasdiktes. Dit is direct zichtbaar in de prestaties van het systeem.
Geavanceerde meerkamertechniek: De constructie bestaat uit meerdere isolerende kamers in combinatie met een inbouwdiepte van 82 mm. Deze opbouw, samen met het middendichtingssysteem, resulteert in uitstekende thermische prestaties en draagt bij aan een stabiel en behaaglijk binnenklimaat.
Hoogwaardige afdichting: Het systeem maakt gebruik van een 3-voudig afdichtingsconcept dat optimale bescherming biedt tegen wind, vocht en temperatuurschommelingen. De dichtingen sluiten perfect aan op het profiel, waardoor tocht vrijwel wordt geëlimineerd en de luchtdichtheid aanzienlijk wordt verbeterd.
























Geachte klanten,
Wij willen u graag informeren dat u vanaf 12-01-2026 standaard ramen en deuren in de basiskleuren 9016 GLAD en 9001 GLAD kunt bestellen met een levertijd van 4 weken.
Vermeld a.u.b in de opmerking dat u versnelde levering wenst.
Let op:
Dit geldt uitsluitend voor bestellingen die volledig uit basiskleuren bestaan.
Levertijd van 4 weken is niet van toepassing op exclusieve of decoratieve panelen, boogconstructies, CITY of hefschuifsystemen.
Indien uw bestelling andere decoren of bovenstaande uitzonderingen bevat, geldt de standaardleverprocedure en de reguliere levertijd.
Team BoWiDo